TAO Project Website Top

東京大学アタカマ天文台 (TAO) 計画

SolarTAO Project Website Top

サンペドロ・デ・アタカマにて山麓施設の完成迫る!

TAO望遠鏡の運用と開発の拠点となる山麓研究棟を建てるため、2013年5月よりサンペドロ・デ・アタカマ市内にて建設を開始、2014年11月の竣工式に向けて着々と工事を進めています。完成を目前に控え、施設の概要をご紹介すると共に工事の状況をお知らせします。

完成が間近に迫った山麓施設
▲完成が間近に迫った山麓施設

TAO山麓施設の概要

TAO山麓施設の土地は、約14,000平米の十分な面積を有し、サンペドロ・デ・アタカマ市の中心街に徒歩でアクセスできる便利な場所に位置しています。2008年8月にこの土地を取得した後、2011年2月には無線ネットワーク用のアンテナを設置、これまでminiTAO望遠鏡の遠隔制御拠点として利用していましたが、口径6.5mのTAO望遠鏡の建設および運用開始を数年後に控え、大型のサポート施設の建設が急務となっていました。

現在建設中の山麓研究棟は、約500平米の建物面積を有しており、主に本館と発電機室の2棟で構成されています。内部には下記のような設備が配置される予定です。なお、将来建屋の増築も予定されています。

  • 大型観測装置の整備を行うための実験室
  • TAO望遠鏡を遠隔操作するための観測室
  • TAO望遠鏡を運用するための事務室
  • TAO望遠鏡で取得したデータを解析するための研究室
  • 生活環境の為のラウンジ・キッチン
  • 研究者滞在の為の宿泊室

山麓施設の完成予想図
▲山麓施設の完成予想図

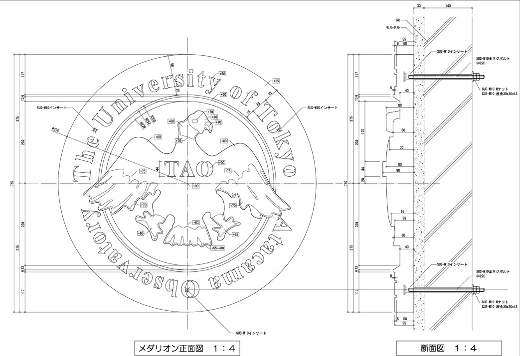
メダリオンの設計図
▲山麓施設の玄関に設置するメダリオンの設計図

銘鈑のイメージ図
▲山麓施設の正門に設置する銘鈑のイメージ図

山麓施設の概要
建設場所 チリ共和国第二州ロア県サンペドロ・デ・アタカマ郡
de la comuna de San Pedro de Atacama, Provincia El Loa, Chile
敷地面積 14,794.6m²
研究棟の建築面積 588.50m²
研究棟の構造 地上1階 鉄筋コンクリート造

これまでの建設工事の様子

2013年4月に研究棟の本館の基礎工事を開始した後、9月より本館の主構造のコンクリート打設および電気室建屋と正門・塀の建設を実施しました。翌年2014年1月からは内装工事が本格化しています。

今後、内装の仕上げ、発電機の設置、敷地の外周の塀の建設等を進め、2014年11月には竣工式を行う予定です。最後の仕上げとなる重要な時期を迎えているため、東京大学施設部と理学部、TAOメンバーが随時現地へ赴き、工事検査と是正指導を実施しています。

2013年5〜8月 本館の基礎工事

地面の掘削完了、場所出し作業中 地面の掘削、場所出し作業
基礎コンクリート打ち開始 基礎コンクリート打ち
基礎梁コンリート打設 基礎梁コンリート打設

2013年9〜12月 本館コンクリート打設、電気室・正門・塀の建設

外壁工事の様子 本館外壁工事の様子
山麓施設の玄関の様子 本館玄関の様子

2014年1〜3月 内装工事等

ケーブルラック敷設 本館内ケーブルラック敷設
壁面への石貼り 壁面への石貼り
幹線ケーブル等配管 幹線ケーブル等配管

2014年4月〜 内装仕上げ、発電機の設置、敷地の外周の塀の建設等

本館玄関の様子 本館玄関の様子
本館全体の外観 本館全体の外観
本館玄関の様子 本館玄関の様子
テラスのコンクリート打設 テラスのコンクリート打設
照明器具の取り付け 照明器具の取り付け
完成した正門脇石塀 完成した正門脇石塀
Copyright(c) 2014 東京大学大学院理学系研究科 TAO計画推進グループ
当サイトについて